Ključne Značajke:
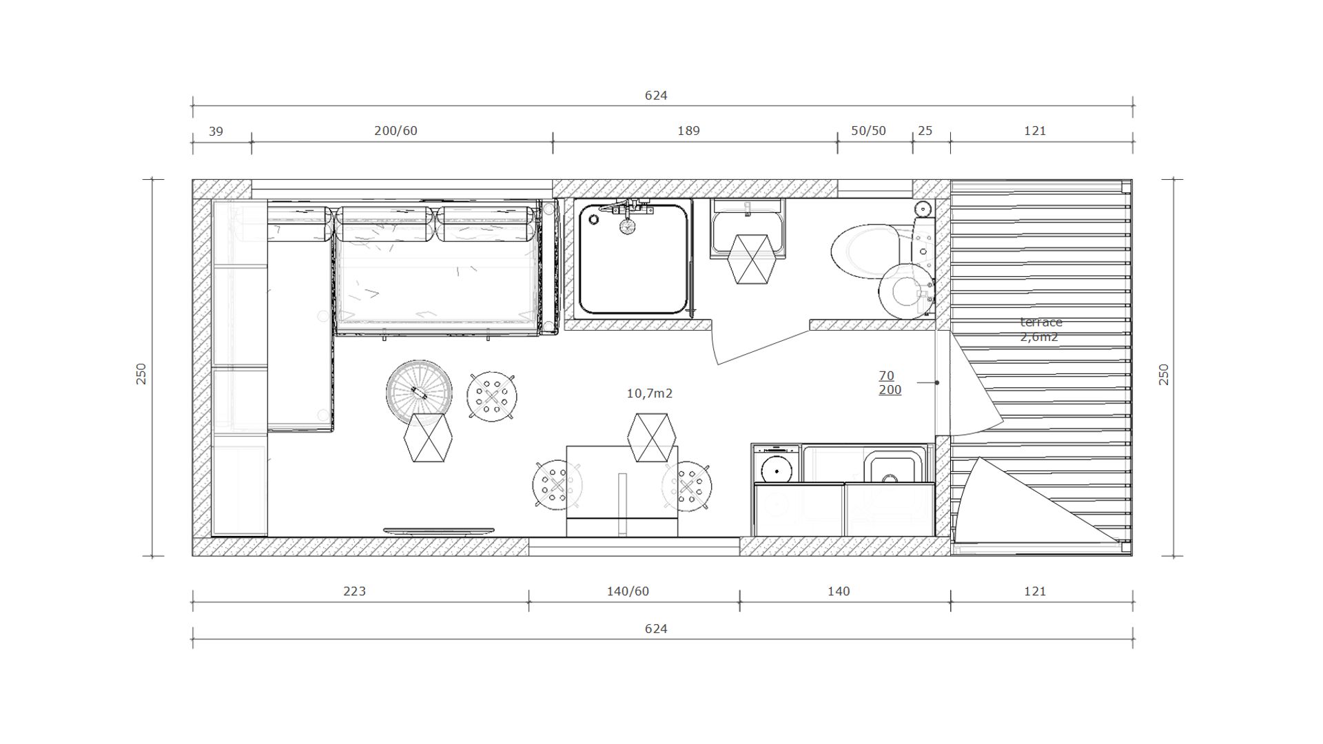
Optimalna iskoristivost prostora: Na 15,60 m², Leona 15 nudi pametno raspoređene prostorije uključujući kupaonicu, dnevni boravak, kuhinju i blagovaonicu, s mogućnošću dodavanja terase.
Opremljenost: Birajte između kuće opremljene s namještajem ili bez njega, ovisno o Vašim potrebama i stilu.
Moderna arhitektura: Suvremeni dizajn koji kombinira funkcionalnost i estetiku, stvarajući ugodan životni prostor.
Visoka kvaliteta izgradnje: Kvalitetni materijali osiguravaju dugotrajnost i energetsku učinkovitost, čineći Leonu 15 savršenom za sve klimatske uvjete.
Prilagodljivost: Mogućnost prilagodbe prema Vašim željama – promjena rasporeda prostorija ili dodavanje dodatnih elemenata.
Leona 15 je dovoljno fleksibilna da može zadovoljiti različite svrhe, bilo da Vam treba stalni smještaj, vikendica ili privremeni boravak. Njena kompaktnost omogućuje jednostavno postavljanje čak i na manje građevinske parcele.
| Broj prostorija | 1 |
|---|---|
| Debljina zida | 160 mm |
| Površina (m2) | 15 |
| Vrsta krova | Jednostrešni |














