Zašto Odabrati Modularno-Montažnu Kuću M-60?
- Kompatkni Dizajn: Kuća M-60 nudi kompaktni i funkcionalni dizajn, savršen za manje parcele ili kao dodatni životni prostor. Njezine pametno raspoređene prostorije osiguravaju maksimalnu iskoristivost prostora uz očuvanje udobnosti i stila.
- Visokokvalitetna Izgradnja: Ova montažna kuća izrađena je od materijala najviše kvalitete, što osigurava dugovječnost i otpornost na različite vremenske uvjete. Svaka kuća M-60 pažljivo je konstruirana kako bi pružila dugotrajan i stabilan dom.
- Energetska Učinkovitost: Opremljena modernim sustavima izolacije i energetski učinkovitom tehnologijom, kuća M-60 pomaže vam uštedjeti na troškovima energije i smanjiti vaš ekološki otisak. Uživajte u udobnosti uz minimalne troškove za energiju.
- Brza i Jednostavna Montaža: Montažna tehnologija gradnje omogućava brzu montažu, što znači da se možete useliti u svoj novi dom u kratkom vremenu. Minimalne potrebe za održavanjem omogućuju vam da se posvetite uživanju u svom novom prostoru bez dodatnih briga.
- Prilagodljivost: Kuća M-60 pruža razne mogućnosti prilagodbe prema vašim potrebama i željama. Birajte između različitih opcija i dodataka kako biste stvorili prostor koji će u potpunosti odgovarati vašim zahtjevima.
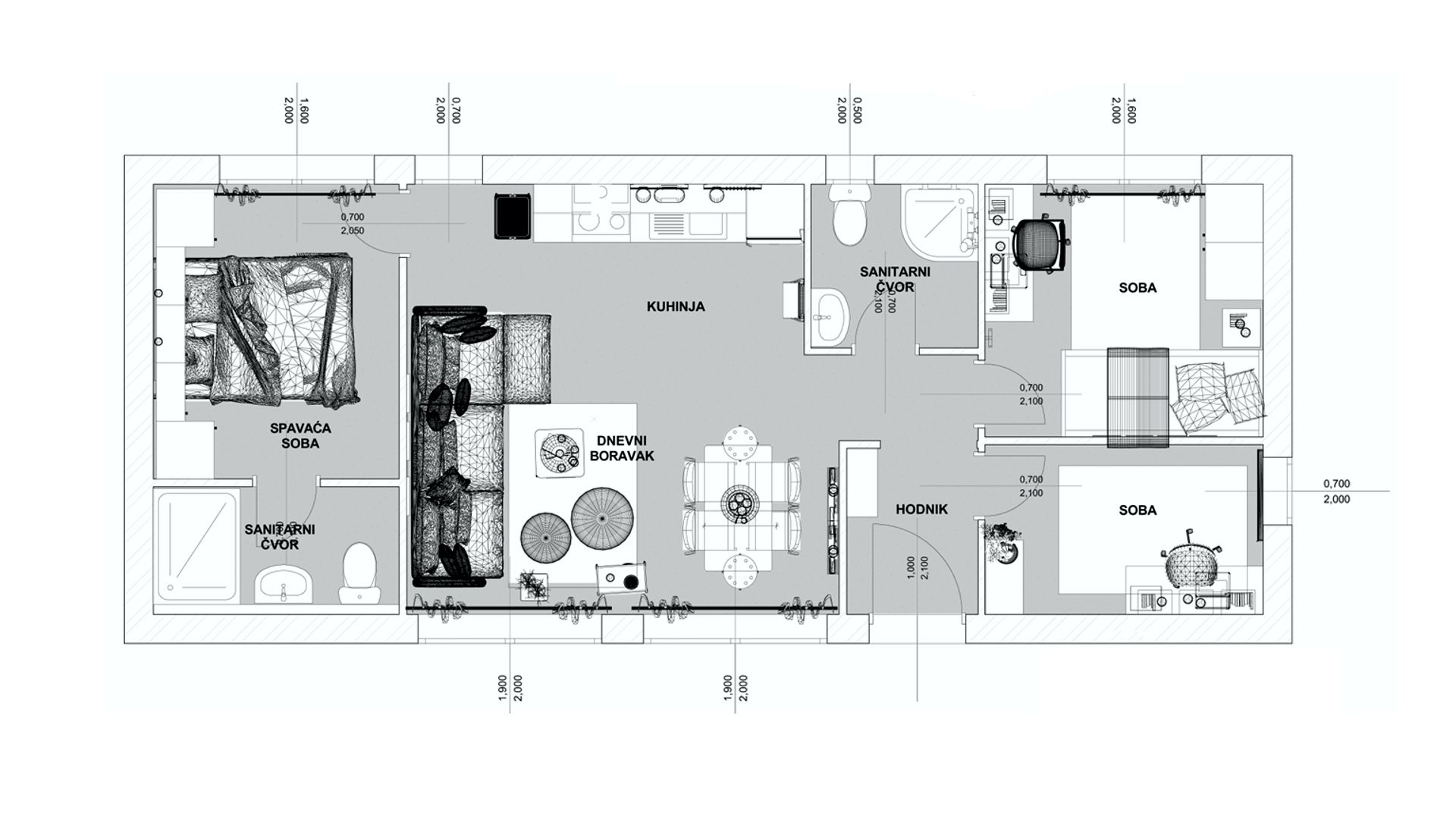
Specifikacije:
- Dimenzije: 12 x 5 m
- Površina kuće: 60 m²
- Broj spavaćih soba: 2
- Broj kupaonica: 2
Postanite Vlasnik Kuće M-60
Ne propustite priliku da postanete vlasnik montažne kuće M-60 – doma koji nudi izvanrednu funkcionalnost u kompaktnom pakiranju. Kontaktirajte nas danas i saznajte kako kuća M-60 može postati vaš savršeni dom. Naš stručni tim je tu da vam pomogne u svakom koraku i pruži vam sve potrebne informacije za montažnu kuću M-60!
Kontaktirajte nas za više informacija, savjeta i dogovora termina sastanka. Otvorite vrata svojoj budućnosti s montažnom kućom M-60!
























