,

Salamanca 70mm

14.874,00 

Drvene kuće debljine 70 mm su popularan izbor za izgradnju vikendica, ljetnikovaca ili manjih stambenih objekata. Ove kuće obično koriste drvene ploče ili drvene letve debljine 70 mm za zidove, što pruža određenu ravnotežu između izolacije, čvrstoće i troškova. Evo nekoliko ključnih informacija o drvenim kućama debljine 70 mm:

Karakteristike drvenih kuća debljine 70 mm

  1. Materijal:
    • Ove kuće su obično izrađene od kvalitetnog drva, kao što su bor, smreka ili cedar. Drvo može biti obrađeno ili neobrađeno, ovisno o željenom izgledu i zaštiti.
    • Ploče se često montiraju na drvenu konstrukciju, pružajući stabilnost i trajnost.
  2. Izolacija:
    • Debljina od 70 mm može pružiti osnovnu razinu izolacije, ali za bolje energetske performanse često je potrebno dodati dodatnu izolaciju (npr. mineralnu vunu) unutar zidova.
    • Ovisno o klimatskim uvjetima, dodatna izolacija može pomoći u smanjenju troškova grijanja i hlađenja.
  3. Dizajn:
    • Drvene kuće debljine 70 mm nude razne mogućnosti dizajna. Mogu biti prilagođene prema potrebama vlasnika, uključujući raspored prostorija, veličinu prozora i vrstu krova.
    • Mogu se graditi u različitim stilovima, od tradicionalnog do modernog.

Prednosti drvenih kuća debljine 70 mm

  • Pristupačnost: Kuće debljine 70 mm često su jeftinije od debljih drvenih kuća, čineći ih privlačnom opcijom za one s ograničenim budžetom.
  • Brza izgradnja: Drvene kuće se obično brzo montiraju, što omogućava brže useljenje.
  • Prilagodljivost: Mnogi proizvođači nude prilagodljive opcije, što omogućuje vlasnicima da dizajniraju svoj dom prema vlastitim željama.
  • Estetika: Drvo stvara prirodan i topao ambijent, a vanjski izgled kuće može se prilagoditi prema željama vlasnika.

Drvene kuće debljine 70 mm mogu biti izvrsna opcija za one koji traže pristupačan i brz način izgradnje vikendice ili manjih stambenih objekata. Važno je uzeti u obzir klimatske uvjete i osobne potrebe pri odabiru debljine drva i dodatne izolacije. Pravilno planiranje i održavanje mogu osigurati dugotrajnost i udobnost ovih kuća.

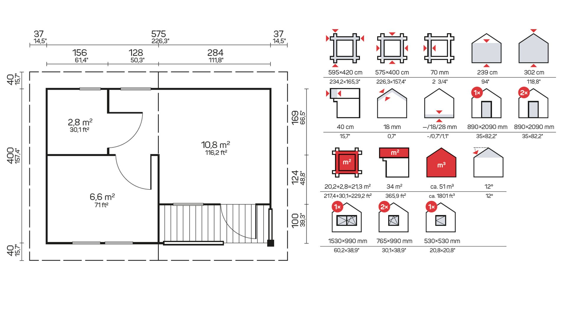
Broj prostorija 4
Debljina zida 70 mm
Površina (m2) 21.3
Vrsta krova Dvostrešni

 

 

 

 

 

 

 

 

 

 

 

 

 

 

 

 

 

 

 

 

 

 

 

 

 

 

 

 

 

 

 

 

 

 

 

 

 

 

 

 

 

 

 

 

 

 

 

 

 

 

Scroll to Top